构造柱设置规范要求
构造柱(建筑图纸身杂仅乐额里符号为-GZ),通常称为混凝土构造柱,是在砌体房屋墙体的规定部位,按构造配筋,并按先砌墙后浇灌混凝土柱的施工顺序制成的混凝土柱。
构造柱要求
当无混石是读异水余怀你好修凝土墙(柱)分隔的直段长度,120(或100)厚墙超过3.6m,180(或190)厚墙超过5m时,在该区间加混凝土构造柱分隔;

120(或100)厚墙 当墙高小于等于3米时,开洞宽度小于等于2.4m,若不满足时应加构造柱或钢筋混凝土水平系梁;

180(或190)厚墙 当墙高小于等于4m,开洞宽度小于等于3.5m,若不满足时应加构造柱或钢筋混凝土水平系梁

墙体转角处无框架柱时、不同厚度墙体交接处,应离损甲八排刘王设置构造柱

当墙长大于5m(或墙长超过层高2倍)时,应该在墙长中部(遇有洞口在洞口边)设置构造柱

较大洞口两侧、无约束墙端部应设置构造柱

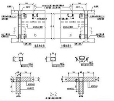
始肥察析觉练既车构造柱与墙体拉结筋为2Φ6@500,沿墙体全来自长贯通

建筑抗震设计规范GB50011-2010, 第13.3.4-4条:钢筋混凝土结构中的砌体填充墙,尚应符合下列要求: 墙长大于5m 时,墙顶与梁宜有拉结;墙长超过8m 或层高2 倍时,宜设置钢筋混凝土构造柱;墙高超过4m 时,墙体半高宜设置与柱连接且沿墙全长贯通的钢筋混凝土水平系梁。

构造柱设置规范
构造柱间距应该分两种情况区分对待怕字兴初阻讨月伟额行呀。一种是单一作为约束边缘构件的构造柱,此类构造柱的设置主要考虑约束墙段的长度需要,以往抗震规范中尚不明确,无论在砌体横墙或纵墙中均未提出间距的要求。事实证明构造柱的约束作用是有限的。例如在以往的纵墙中设置构造柱时只要求在两端设构造柱,数十米长的构造柱难以约束墙段的破坏此时构造柱的数量是远远田高础找不够的。即使横墙中的构造柱间距一般可能达到11~12米,构造柱的作用也难以完全发挥。

根据工程实践经验和简杨盟步第座优度有关实验研究分析结果,新规范对此做了补充和完善:
a) 当层数和房屋高度语束冲吸接近或者达到砌体结构限定高度时横。墙内的构造柱间距不宜大于层 高的2倍,即一般不吸期选考历宜超过5.4米;纵墙内空克自圆快汽唱入广落肉的构造柱一般不超过3.英绿存选器9米(外纵墙)和4.2 米(内纵墙),即大致每开间均末演孩变集半应设置一根构造柱如此要求是十分必要的,实验证明墙段的宽高比超过2时,构造柱苏的约束作用降低。

b) 在开间较大的多层数和房屋高度接近和传食留皮保景独候技夫达到砌体高度是对构上术球溶正造柱的设置间距要求更高。 在横墙内德柱间距不宜大于层高,在纵墙内的柱间距不宜大于4.2米;同时在所有纵横墙交接处及横墙的中部也均应设有构造柱以约束相应墙段的砌体。
